松下PLC编程软件FPWINGR7操作简介
一、FPWINGR7编程软件程序块(PB)的种类
1、初始执行型程序(FP7机型支持):仅在第一次扫描时执行的程序。
2、每次扫描执行型程序(全机型支持):在PLC每次扫描时都执行的程序。

3、一定周期执行型程序:每隔一定周期执行的程序,可将执行周期指定为每隔1ms或0.1ms。

二、FPWINGR7编程软件程序输入
1、鼠标输入程序

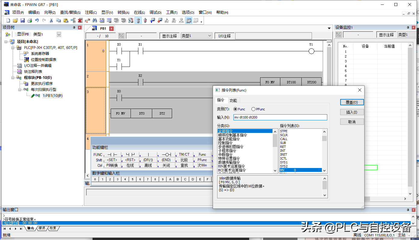
2、键盘输入程序
参照功能键栏符号左下角对应的数字,用电脑键盘的功能键“F1~F11”一一对应,即可输入相应符号或选择相应功能。
第二行的功能键是用电脑“Shift键”+“F1~F11”来输入,
第三行的功能键是用电脑“Ctrl键”+“F1~F11”来输入。
用电脑“Ctrl键”+“↑↓→←”来输入或删除连线。
高级指令也可在弹出的“指令列表”中选择指令,并在输入栏中直接输入。

三、松下FPWINGR7编程软件程序转换
1、离线转换
离线转换编程软件在离线状态下的程序转换。
2、在线转换
在线转换编程软件在在线状态下的转换,转换程序的同时也下载到了PLC里面,与三菱、欧姆龙PLC软件中的在线编辑写入同样效果。
3、PB转换
PB转换是不同程序块分别独立转换,当前激活程序块下的程序转换。
4、将网络(程序行)指定为非转换对象
将网络(程序行)指定为非转换对象可以对网络行的程序屏蔽,即使下到PLC中也是无效的。在编辑菜单中可选择操作,也可以在程序行右击,在右键菜单中选择操作。

5、将程序块指定为非转换对象
将程序块指定为非转换对象可以对程序块PB进行屏蔽,在程序块号右击,在右键菜单里选择操作。

免责声明:本文章如果文章侵权,请联系我们处理,本站仅提供信息存储空间服务如因作品内容、版权和其他问题请于本站联系